Direkt zum Seiteninhalt

Praxisplanung Zahnarztpraxis - Marcel Baechler - Innenarchitektur, Architektur & Praxisplanung

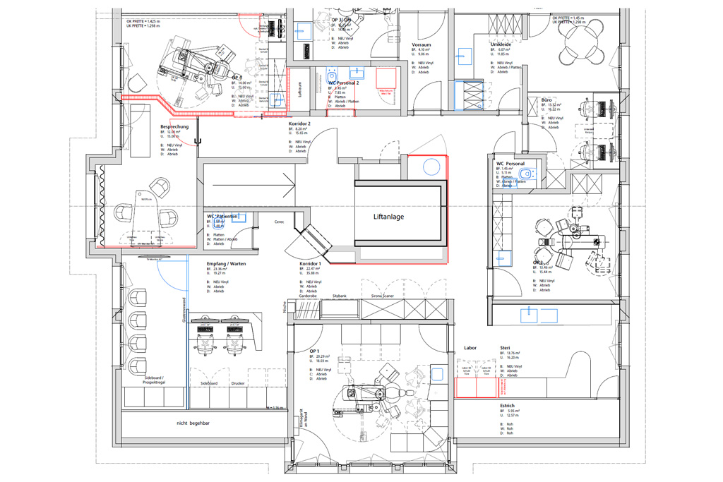
Zahnarztpraxis Ebmatingen | Ebmatingen

Bauherr: Dres. med. dent. R. Brietze & I. Gabriel, Ebmadingen
Realisierung: 2021
Auftragsart: Direktauftrag

Innenarchitektur: Marcel Baechler, Innenarchitekt vsi.asai.
Verantwortlicher Planer: Marcel Baechler, Innenarchitekt vsi.asai.
Bauleitung: Marcel Baechler, Innenarchitekt vsi.asai.



Vor- | Nachher (Schieber nach Links und Rechts bewegen)
Line
Zurück zum Seiteninhalt