Neubau Arztpraxis Bellach
Auftraggeber: Gemeinde Bellach
Realisierung: 2024-2025
Auftragsart: Direktauftrag
Innenarchitektur: Marcel Baechler, Innenarchitekt vsi.asai.
Bauleitung: Marcel Baechler, Innenarchitekt vsi.asai.
Innovative Innenarchitektur für eine Arztpraxis in Bellach
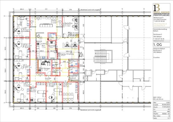
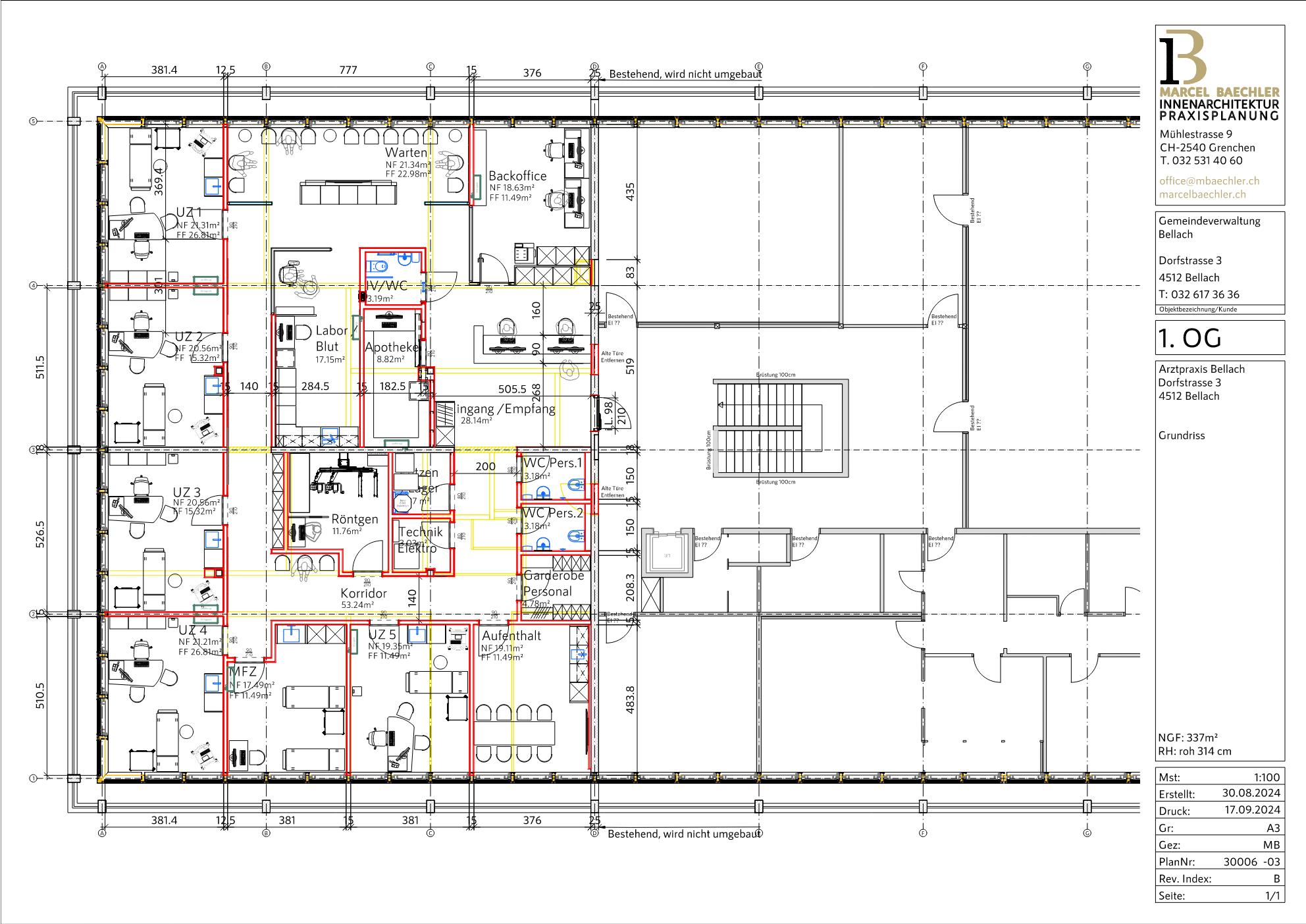
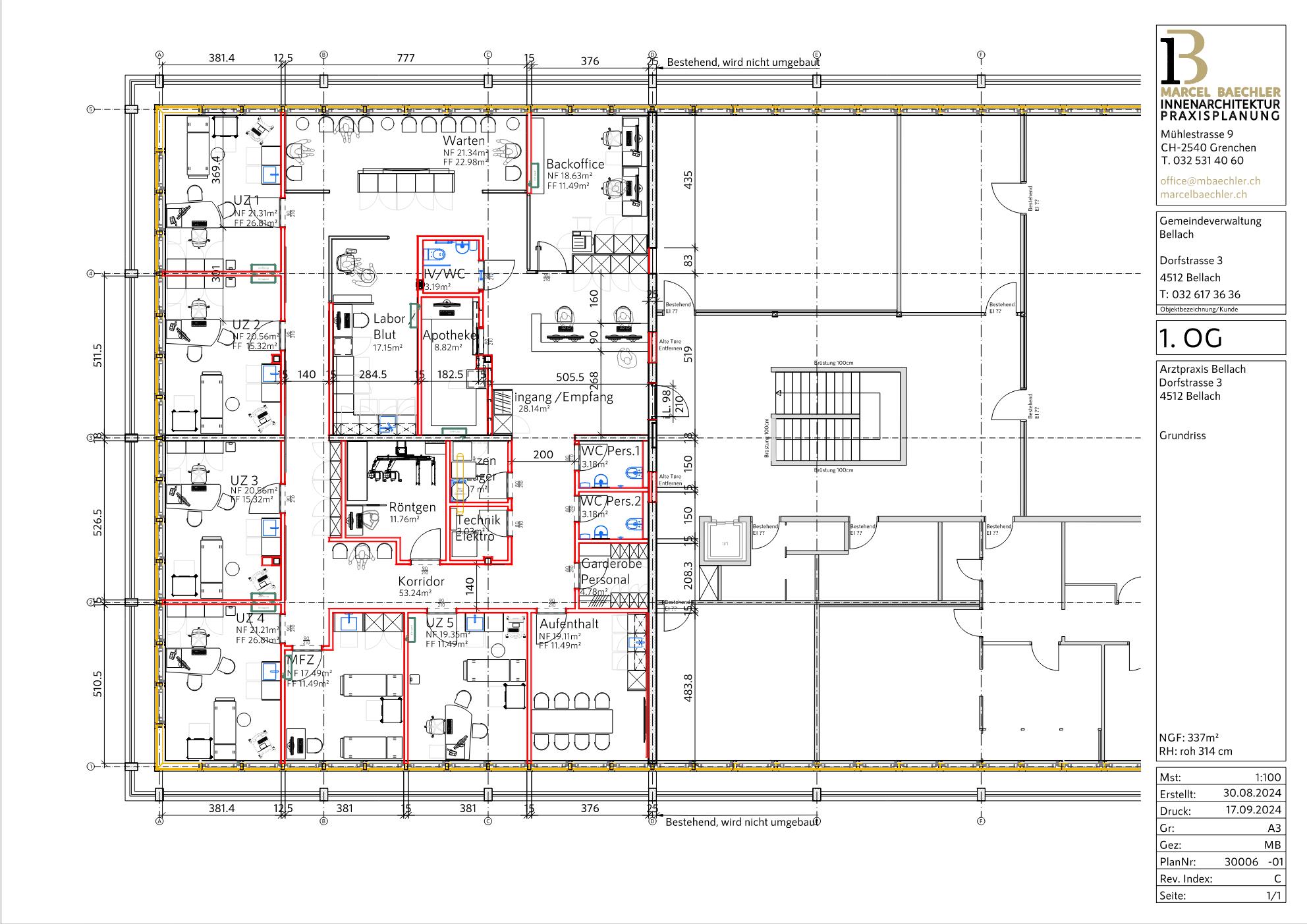
Im Herzen von Bellach, im ersten Obergeschoss des bestehenden Gemeindehauses, wurde uns die spannende Aufgabe übertragen, eine moderne Arztpraxis für allgemeine innere Medizin zu gestalten. Diese Praxis wird nicht nur die medizinische Versorgung der Bevölkerung verbessern, sondern auch durch ein durchdachtes Raumkonzept und ansprechendes Design überzeugen.
Gestaltungsansatz und Konzept
Die Herausforderung bestand darin, die vorhandene Struktur des Gemeindehauses optimal zu nutzen und gleichzeitig eine funktionale sowie ästhetisch ansprechende Umgebung zu schaffen. Unser Team hat sich intensiv mit den Bedürfnissen der zukünftigen Nutzer auseinandergesetzt und ein Konzept entwickelt, das sowohl die Anforderungen an eine moderne Arztpraxis als auch die Wünsche der Patienten berücksichtigt.
Die Fotos, die wir Ihnen präsentieren, zeigen eindrucksvoll, wie die Praxis aussieht. Helle Farben und natürliche Materialien schaffen eine einladende Atmosphäre, während durchdachte Lichtkonzepte für eine angenehme Beleuchtung sorgen. Die Gestaltung der Wartebereiche fördert Entspannung und Wohlbefinden, was besonders wichtig ist in einem medizinischen Umfeld.
Umfassende Planung und Verantwortung
Unser Leistungsspektrum umfasst nicht nur die Innenarchitektur, sondern auch die Elektro- und Sanitärplanung. Wir legen grossen Wert auf eine ganzheitliche Herangehensweise, um sicherzustellen, dass alle Aspekte der Praxis harmonisch ineinandergreifen. Die Integration modernster Technologien in den Bereichen Röntgen und Labor ist dabei ebenso entscheidend wie die Schaffung einer benutzerfreundlichen Umgebung für das medizinische Personal.
Darüber hinaus sind wir verantwortlich für die Visualisierung des Projekts sowie für die Baueingabe und Ausführungsplanung. Dies ermöglicht uns, alle Phasen des Projekts eng zu begleiten und sicherzustellen, dass unsere Visionen in jeder Detailtreue umgesetzt werden.
Bauleitung – Qualitätssicherung bis zur Fertigstellung
Ein weiterer zentraler Aspekt unserer Arbeit ist die Bauleitung. Hierbei stellen wir sicher, dass alle Arbeiten gemäss den höchsten Standards ausgeführt werden. Durch regelmässige Kontrollen und enge Abstimmungen mit den ausführenden Unternehmern garantieren wir einen reibungslosen Ablauf und die Einhaltung von Zeitplänen sowie Budgets.
Fazit
Die Neugestaltung der Arztpraxis im Gemeindehaus von Bellach stellt ein spannendes Projekt dar, das sowohl funktionale als auch ästhetische Ansprüche erfüllt. Wir freuen uns darauf, dieses Vorhaben weiter voranzutreiben und sind überzeugt davon, dass es einen positiven Einfluss auf die Gesundheitsversorgung in der Region haben wird. Mit unserem umfassenden Ansatz in der Innenarchitektur setzen wir neue Massstäbe für moderne Praxen – zum Wohle der Patienten und des medizinischen Personals gleichermassen.
Vor- | Nachher (Schieber nach Links und Rechts bewegen)
Visualisierung | Realitätsfoto (Schieber nach Links und Rechts bewegen)